軽井沢安東美術館
Musée Ando à Karuizawa
※写真・文章等の転載はご遠慮ください。

大賀通りに面する西側外観
撮影:走出直道/エスエス
武富 恭美(ディーディーティー)
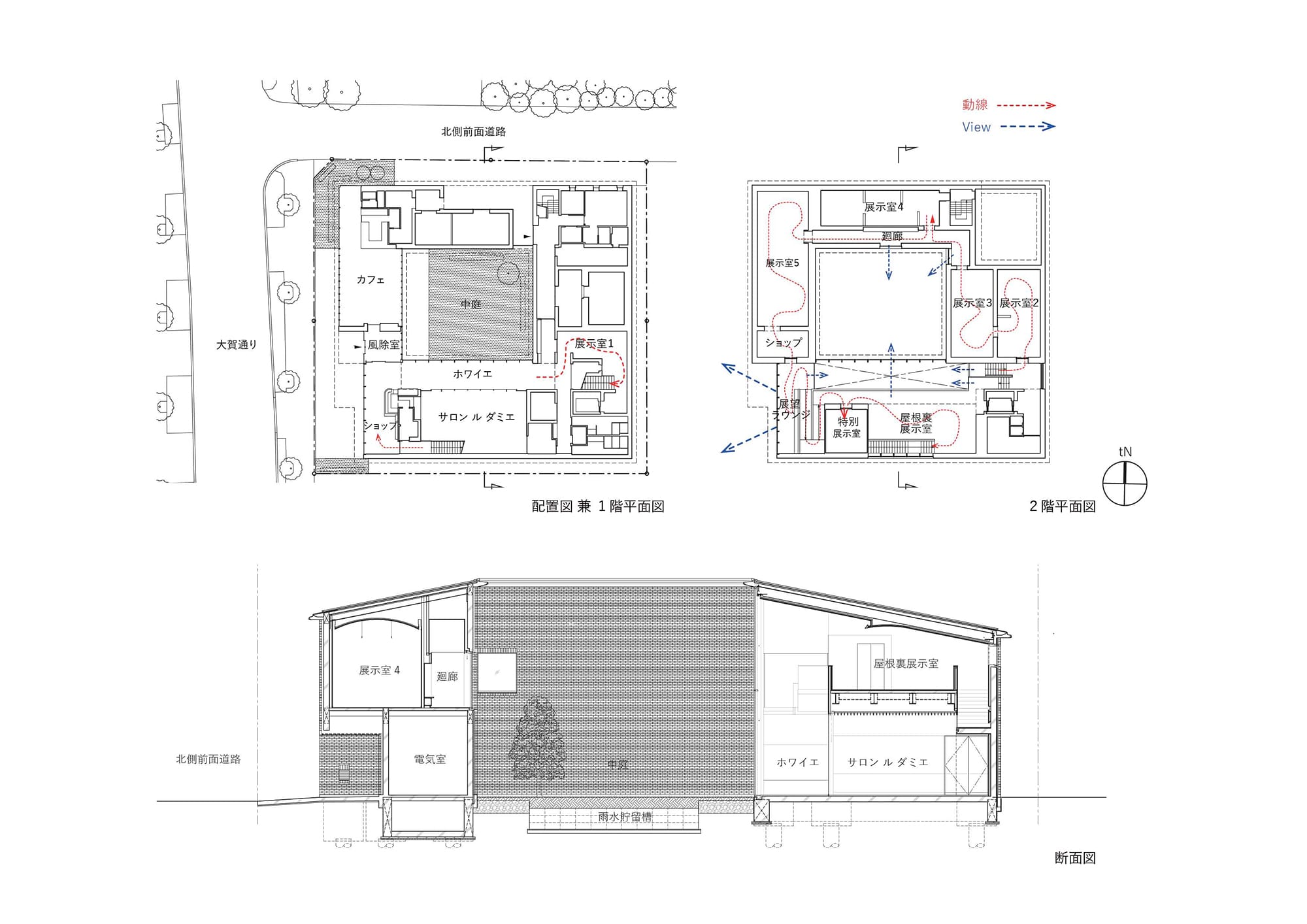
安東夫妻が収集した藤田嗣治作品を自宅のような空間で公開したいと設立した美術館。初期の展示構想から設計者も関わり趣旨を建築化した。英国製手成形煉瓦をキャビティウォールとして用い、ガラスの大開口と組み合わせた。来館者は煉瓦に包まれた展示空間と、中庭や周辺環境に開かれたサロンやラウンジを回遊し、藤田作品と軽井沢の自然を体験する。中庭やカフェも一体となり地域や海外と連携した文化交流・発信の場として活用されている。
Yasumi Taketomi (d/dt Arch.)
The museum showcases Tsuguharu Foujita’s works, collected by the Andos, in a space that feels like home. The architect was involved from the exhibition’s conception, translating the museum’s vision into architecture. Hand-formed English bricks are used as cavity walls, paired with large glass openings.
Visitors experience Foujita’s works and Karuizawa’s natural beauty by walking through brick-enclosed galleries and the open, light-filled salon and lounge. The museum serves as a cultural hub, connecting local and international communities.

ホワイエより中庭をみる
撮影:走出直道/エスエス

展示室4:聖母子像のための静謐な場
撮影:走出直道/エスエス

展示室5:安東家の居間を思わせるしつらえ
撮影:走出直道/エスエス

屋根裏展示室:藤田の手しごとを伝える空間
撮影:走出直道/エスエス


Architect

武富 恭美
(ディーディーティー)1968年東京都生まれ/1991年東京大学工学部建築学科卒業/1993年東京大学大学院修士課程修了/1994年コロンビア大学大学院修士課程修了/2003年まで磯崎新アトリエ勤務/2001年ディーディーティー設立
DATA
名称 軽井沢安東美術館
所在地 長野県北佐久郡軽井沢町
主要用途 美術館
建築主 一般社団法人安東美術館 代表理事 安東泰志
●設計
設計者:武富恭美
建築:武富恭美/ディーディーティー
構造:梅沢建築構造研究所
設備:環境エンジニアリング
監理:ディーディーティー
●施工
建築:清水建設
●面積
敷地面積:1,343.44㎡
建築面積:774.20㎡
延床面積:1,363.79㎡
●建ぺい率 57.63%(許容60%)
●容積率 101.52%(許容200%)
●階数 地上2階
●高さ
最高の高さ:9,970mm
軒の高さ:9,750mm
●構造
主な構造:鉄筋コンクリート造
杭・基礎:既製コンクリート杭
●期間
設計期間:2018年12月~2021年3月
施工期間:2021年4月~2022年9月
●掲載雑誌 『近代建築』2023年9月号