狸上るビル
TANUKI NOBORU Bldg.
※写真・文章等の転載はご遠慮ください。

建物とアーケードの新しい繋がり方
撮影:佐々木育弥
千葉 拓也、高嶋 一穂、中澤 秀太(竹中工務店)
自然光と街の賑わいを引き込む
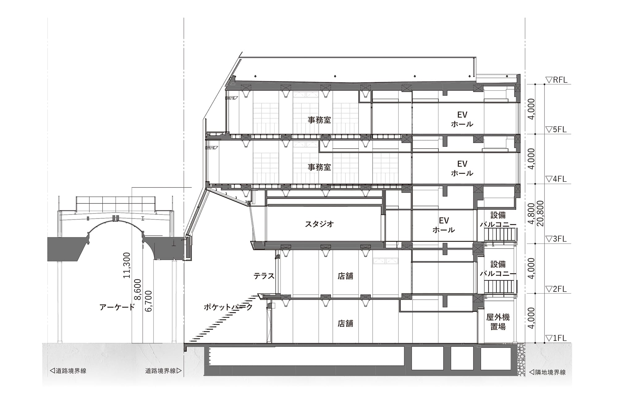
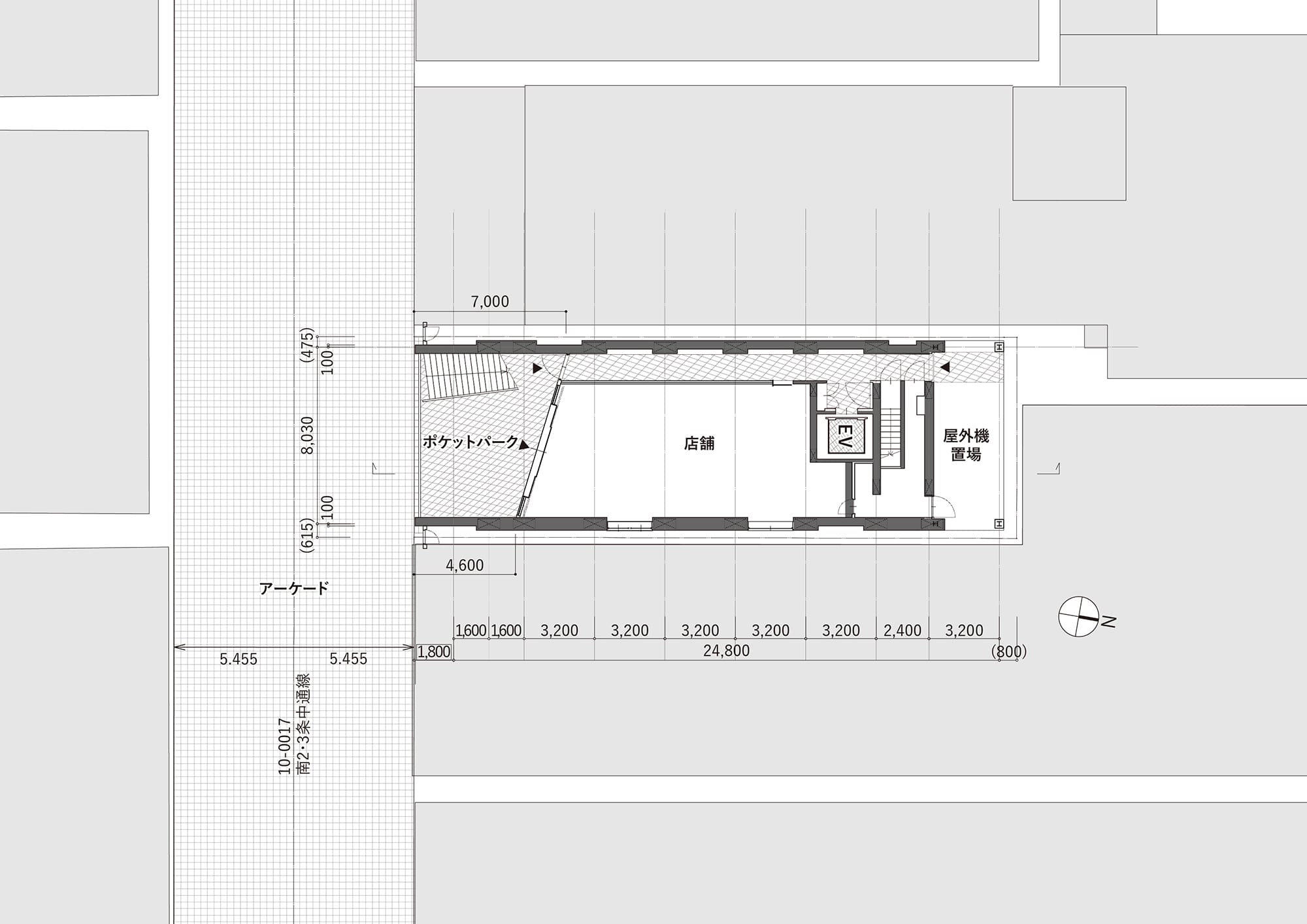
雪国の全蓋式アーケード商店街に建つ小規模複合ビル。壁面セットバックにより生み出した半屋外のポケットパークを介して、自然光と街の賑わいを引き込む、建物とアーケードの新しい繋がり方の創出を目指した。また、狭小地として施工的制約の多い中、仮設材と仕上材を兼ねる構工法により、生産合理化と建設資材削減、建設時エンボディド・カーボンの抑制を図っている。
Takuya Chiba, Kazuho Takashima, Shuuta Nakazawa (TAKENAKA CORPORATION)
This small complex located in the shopping arcade. The arcade has a pocket park created by wall setbacks that admits natural light and draws in the vibrancy of the city to create a new way of linking building and the shopping arcade. Because of the many limiting factors on construction, temporary construction material quantities were reduced, and these were combined with the finishing materials to create the interior design. The goal was to limit construction materials, streamline production and reduce the embodied carbon from construction.

自然光と街の賑わいを引き込む半屋外空間
撮影:佐々木育弥

街と連続した半屋外のポケットパーク
撮影:佐々木育弥

ラチス梁・打込型枠を表した事務所空間
撮影:佐々木育弥

施工時の設えをインテリアに表出させた
撮影:佐々木育弥

断面図

配置図兼1階平面図
Architect

千葉 拓也
(竹中工務店)1986年北海道生まれ/2011年北海道大学大学院工学研究院修士課程修了後、竹中工務店入社/現在、竹中工務店東京本店設計部設計第2部門設計3グループチーフアーキテクト/2022年日事連建築賞奨励賞/2024年グッドデザイン・ベスト100、日本空間デザイン賞銀賞ほか

高嶋 一穂
(竹中工務店)1976年北海道生まれ/2001年北海道大学大学院工学研究院修士課程修了後、竹中工務店入社/現在、竹中工務店北海道支店設計部設計2グループ長/2009年日経ニューオフィス賞経済産業大臣賞/2013・17年BCS賞/2018年日事連建築賞日事連会長賞ほか

中澤 秀太
(竹中工務店)1990年千葉県生まれ/2016年横浜国立大学大学院修士課程修了後、竹中工務店入社/現在、竹中工務店東京本店設計部構造第4部門構造1グループ主任
DATA
名称 狸上るビル
所在地 北海道札幌市
主要用途 事務所、店舗、レンタルスタジオ
建築主 遠藤興産
●設計
設計者:竹中工務店
建築:千葉拓也、高嶋一穂/竹中工務店
構造:金田崇興、中澤秀太/竹中工務店
設備:田島大介、市場達矢/竹中工務店
環境:中川浩明、常岡優吾/竹中工務店
監理:サン設計事務所
●施工
施工:竹中工務店
●面積
敷地面積:249.89㎡
建築面積:218.63㎡
延床面積:921.45㎡
●建ぺい率 87.75%(許容100%)
●容積率 354.65%(許容654.6%)
●階数 地上5階
●高さ
最高の高さ:25,260mm
軒の高さ:20,860mm
●構造 鉄筋コンクリート造
●期間
設計期間:2021年1月~2022年12月
施工期間:2023年2月~2023年12月
●掲載雑誌 『建築技術』2024年12月号『ディテール』No.244